北京经济技术开发区亦城亦禧家园共有产权住房二次申购登记公告
北京博大新元房地产开发有限公司开发建设的亦城亦禧家园共有产权住房项目,现开放申购登记,登记时间为2021年9月16日10:00至2021年10月7日17:00。
一、项目基本情况
亦城亦禧家园项目位于北京经济技术开发区河西区,东至博兴八路,南至宏一路,西至宏农路与X90S1地块,北至兴海路。
项目规划总建筑面积约139991.35平方米,其中共有产权住房项目地上住宅建筑面积约86971.4平方米,容积率2.0。项目总套数994套,本次配售房源406套(以选房实际数据为准),均为单套建筑面积约87-89平方米的二居室,销售均价30000元/平方米,全装修交房。
二、申购条件
(一)申请购买北京经济技术开发区共有产权住房的家庭,应符合以下条件:
1.申请人应具有完全民事行为能力,申请家庭成员包括夫妻双方及未成年子女。单身家庭申请购买的,申请人应当年满30周岁。
2.申请家庭应符合本市住房限购条件且家庭成员在本市均无住房。一个家庭只能购买一套共有产权住房。
3.非京籍申请人在京连续缴纳社保或个税满60个月。
4.申请人应在北京经济技术开发区内就业。
(二)申请家庭符合上述规定条件,但有以下情形之一的,不得申请购买共有产权住房:
1.申请家庭已签订住房购买合同或征收(拆迁)安置房补偿协议的。
2.申请家庭在本市有住房转出记录的。
3.有住房家庭夫妻离异后单独提出申请,申请时点距离婚年限不满三年的。
4.申请家庭有违法建设行为,申请时未将违法建筑物、构筑物或设施等拆除的。
申请家庭承租公共租赁住房、公有住房(含直管和自管公房等)后又购买共有产权住房的,应在购房合同网签前书面承诺腾退所租住房[注:已承租人才公租房(含白领公寓)的住户,需预售合同网签前与产权单位签订书面人才公租房退房承诺书后,方可进行网签工作]。
三、销售对象
本项目销售对象为具备本市共有产权住房购买资格的北京经济技术开发区内就业人员,分为以下五类:
1.为北京经济技术开发区产业发展提供行政服务的管理机构在职在编且截止2021年8月试用期满的职工。
2.为北京经济技术开发区提供市政能源保障的国有公司在职在编且截止2021年8月试用期满的职工。
3.北京经济技术开发区内公办非营利性医院在职且截止2021年8月试用期满的医护人员,北京经济技术开发区内公办非营利性学校在职且截止2021年8月试用期满的教师。
第1-3类认定标准:截止2021年8月,申请人在本单位试用期满的工作证明或劳动合同。
4.北京经济技术开发区组织人事部认定的亦城顶尖人才、亦城领军人才、亦城杰出人才、亦城优秀人才。
第4类认定标准:以北京经济技术开发区组织人事部认定文件为准。
5.其他在北京经济技术开发区内就业的申请家庭,包括经开区225平方公里范围内,个人社保权益已划入经开区的就业人员。
第5类认定标准:申请人所在企业在北京经济技术开发区进行工商注册或纳税。申请人2021年8月在北京市个人社保权益记录中所载明的缴费区为北京经济技术开发区。
以上五类申购家庭不分组别,统一进行摇号。
四、共有份额比例确定
根据《北京市共有产权住房管理暂行办法》(京建法〔2017〕16号)的规定,该项目产权份额的确定情况如下:
(一)共有份额比例确定原则
该项目的房屋产权由购房人与政府按份共有,确定原则按照《北京市共有产权住房管理暂行办法》(京建法〔2017〕16号)第十八、十九条执行,其中政府产权份额由北京博大新元房地产开发有限公司持有。
(二)共有份额比例评估及确定结果
该项目申购前已经委托房地产评估机构完成对购房人与政府共有份额比例的评估,根据《北京市共有产权住房管理暂行办法》(京建法〔2017〕16号)及评估报告,该项目单套住房的购房人产权份额比例为60%,北京博大新元房地产开发有限公司(政府产权份额代持机构)持有剩余40%份额。
举例:若购房家庭选择了一套建筑面积为88平方米,销售价格为30000元/平方米的房屋,则该家庭需支付的购房款为88平方米×30000元/平方米=2640000元,该家庭所占该套房屋产权份额比例为60%。
五、申请流程
(一)申请人员在政府网上申购公告发布时间起,登录北京市住房和城乡建设委员会网站http://gycq.zjw.beijing.gov.cn共有产权住房申购板块进行线上申购。
(二)第1-4类申请人在完成线上申请后,由申请人登记成功后将相关材料于2021年9月16日至2021年10月10日9:00-17:00期间报送至开发区共有产权住房接待中心(北京经济技术开发区博客雅苑小区西侧9号商业楼)。
(三)有下列情形之一的,不纳入摇号范围
1.第1-4类申请人未在2021年10月10日17:00前向开发区共有产权住房接待中心申报递交资料或资料不齐的;
2.申报资料有误或与网申信息不一致的。
(四)第1-3类申请人员需提交以下材料
1.申请人身份证复印件加盖公章;
2.申请人在本单位工作证明(原件加盖公章)或劳动合同(复印件加盖公章),需体现截止2021年8月,申请人在本单位试用期满的工作证明或劳动合同;
(五)第4类申请人员需提交以下材料
1.申请人身份证复印件加盖公章;
2.北京经济技术开发区组织人事部提供的人才认定文件。
六、资格审核
(一)网上申购结束后,市住房城乡建设委会同公安、地税、人力社保、民政、不动产登记等部门通过本市共有产权住房资格审核系统对申请家庭的购房资格进行审核;北京经济技术开发区社会保险保障中心负责对申请人社会保险缴纳情况进行审核;北京经济技术开发区行政审批局、税务局对申请人员所在企业工商注册、纳税等情况进行审核;北京经济技术开发区组织人事部对申请人员为亦城顶尖人才、亦城领军人才、亦城杰出人才、亦城优秀人才和为北京经济技术开发区产业发展提供行政服务的管理机构的员工的情况进行审核;北京经济技术开发区城市运行局对申请人员为市政能源保障公司员工的情况进行审核;北京经济技术开发区社会事业局对申请人员为医院医护人员和学校教师的情况进行审核。
经审核,申请家庭信息不符合本项目申购条件或与承诺不符的,不纳入摇号范围。
(二)审核工作结束后,审核结果将在北京经济技术开发区官方网站进行公示。如经审核,申购家庭信息不符合条件或申请家庭因填报家庭信息与实际家庭信息不一致而未审核通过的,不得参与摇号、选房。
(三)对审核结果有异议的申购家庭,可在审核结果公告规定的时间内,向开发区共有产权住房接待中心递交资料申请复核,因个人原因网申信息填报错误导致审核未通过的不予复核。
(四)在申请家庭选房后,正式签约前,开发企业将再次组织对选房家庭进行购房资格审核,凡不符合要求的家庭,不得签约,取消本项目购买资格。
七、销售监管
(一)为确保共有产权住房销售工作公开、公平、公正,共有产权住房摇号、选房过程由公证机关全程公证。北京经济技术开发区开发建设局将对销售工作全程进行监管。
(二)申购家庭应在申购阶段如实填写家庭信息,并据实承诺符合本次申购相关条件。选房前提交的纸质材料应与网申家庭信息保持一致。对通过隐瞒家庭住房状况、伪造相关证明等方式,弄虚作假,骗购共有产权住房的家庭,一经查实,严格按照《北京市共有产权住房管理暂行办法》取消其资格,禁止其十年内再次申请本市各类保障性和政策性住房;由开发企业与其解除合同、并由购房家庭承担相应的违约责任和法律责任。
(三)对有关单位和开发企业工作人员在共有产权住房资格申请、审核、公示、摇号、销售、退出等过程中,玩忽职守、滥用职权、徇私舞弊的,依法追究行政责任;构成犯罪的,移交司法机关依法追究刑事责任。
八、需要说明的问题
(一)根据北京市政府常务会议审议通过的《关于加快发展装配式建筑的实施意见》要求,本项目采用装配式建筑。
(二)根据国家相关政策及本项目设计方案审核意见要求,本项目采用开放式街区设计。
(三)申请人及家庭全体共同申请人名下有集体土地上合法住房又购买共有产权住房的,如涉及集体土地上房屋拆迁,在补偿安置时,不得选取房屋安置补偿方式,或将已购共有产权住房予以腾退后再选取房屋安置补偿方式。
(四)申请家庭放弃选定住房或选定住房后未签订购房合同,累计两次及以上的,3年内不得再次申购共有产权住房。
(五)政府份额代持机构(出卖方)为北京博大新元房地产开发有限公司。
(六)购房人取得的房屋产权性质为:“共有产权住房”,房屋再上市等后续管理按照共有产权住房相关规定执行,转让对象应为其他符合共有产权住房购买条件的家庭,且申请人在北京经济技术开发区内就业。
(七)本项目支持公积金贷款、商业贷款、组合贷。
(八)亦城亦禧家园项目房源、户型及合同等信息由北京博大新元房地产开发有限公司提供,仅供参考。
(九)本公告由北京经济技术开发区开发建设局负责解释。
项目《北京市共有产权住房预售合同》已在网上公示。合同链接:https://pan.baidu.com/s/1FzAbD7gBCATPAMlAygCmIw提取码:4tge,如对预售合同有修改意见,请于2021年10月7日17:00前反馈至kfqgycq@126.com
网申地址:http://gycq.zjw.beijing.gov.cn
申购热线:010-5778229957782345(早9:00—晚17:00)
监督电话:010-6788018767888929(早9:00—晚17:00)
北京经济技术开发区开发建设局
2021年9月15日
亦城亦禧家园共有产权住房项目概况
亦城亦禧家园项目位于北京经济技术开发区河西区,东至博兴八路,南至宏一路,西至宏农路与X90S1地块,北至兴海路。
项目规划总建筑面积约139991.35平方米,其中共有产权住房项目地上住宅建筑面积约86971.4平方米,容积率2.0。项目总套数994套,均为单套建筑面积约87-89平方米的二居室,销售均价30000元/平方米,全装修交房。
(一)交通路网
轨道交通:亦庄地铁线荣昌东街站,亦庄地铁线荣京东街站。
公交路线:兴31路、兴59路金茂悦南区站。
(二)周边配套
医院:首都医科大学附属北京同仁医院,大兴区中西医结合医院,北京中医药大学东方医院(南区)。
商场:龙湖天街(在建)、大族广场、亦庄创意生活广场,城乡世纪广场、华联力宝购物中心。
学校:幼儿园:亦庄第五幼儿园、亦庄第二中心幼儿园、东方蒙特梭利幼儿园。小学:亦庄第二中心小学、中芯国际小学、北京亦庄实验小学。中学:北京亦庄实验中学、北京二中亦庄学校、人大附中亦庄新城学校。
超市:首航超市,世纪华联超市,物美超市等。
银行:中国光大银行,中国建设银行,兴业银行,北京市农村商业银行,中国工商银行。
公园:南海子公园,亦庄滨河森林公园。
(三)基础数据
亦城亦禧家园共有产权住房地上住宅建筑面积约86971.4平方米,容积率为2.0,绿地率为30%,建筑密度为17.77%。
亦城亦禧家园共有产权住宅楼共8栋楼,分别为1号楼、2号楼、3号楼、4号楼、5号楼、6号楼、7号楼、8号楼;单建汽车库1栋。各住宅楼每单元均为两部电梯四户。
1号住宅楼共3个单元,建筑层数为地下2层,地上12层,建筑高度35.7米,层高为2.9米,地上全部为共有产权住房,144套。地下设自行车库。
2号住宅楼共2个单元。建筑层数为地下2层,地上12层,建筑高度35.7米,层高为2.9米,地上大部分为共有产权住房,94套,在首层建有物业用房、设备用房。
3号住宅楼共3个单元。建筑层数为地下3层,地上12层,建筑高度35.7米,层高为2.9米,地上大部分为共有产权住房,144套;地下设有地下设自行车库、公共配套(图书馆、健身馆、咖啡馆);屋面层建有设备用房。
4号住宅楼共2个单元。建筑层数为地下3层,地上12层,建筑高度35.7米,层高为2.9米,地上全部为共有产权住房,96套。
5号住宅楼共3个单元。建筑层数为地下3层,地上11层,建筑高度32.8米,层高为2.9米,地上全部为共有产权住房,132套。地下设自行车库。
6号住宅楼共3个单元。建筑层数为地下3层,地上12层,建筑高度35.7米,层高为2.9米,地上全部为共有产权住房,144套。地下设自行车库。
7号住宅楼共2个单元。建筑层数为地下3层,地上12层,建筑高度35.7米,层高为2.9米,地上全部为共有产权住房,96套。
8号住宅楼共3个单元。建筑层数为地下3层,地上12层,建筑高度35.7米,层高为2.9米,地上全部为共有产权住房,144套。
汽车库,地下三层,局部地下二层,建筑埋深12.65米,层高地下一层3.5米、地下二层3.4、地下三层3.5。设备用房主要功能为变配电室、锅炉房、水泵房、固定通信设备间等,其余为汽车库。
户型情况:
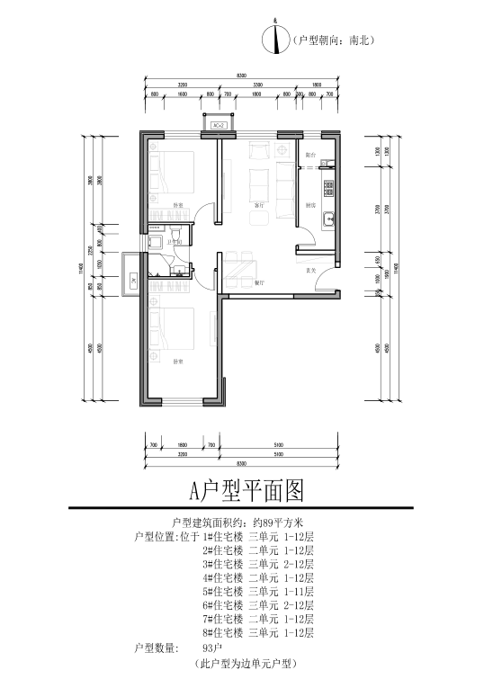
A户型(二居室):约89平方米,共93户,位于1号楼三单元1-12层、2号楼二单元1-12层、3号楼三单元2-12层、4号楼二单元1-12层、5号楼三单元1-11层、6号楼三单元2-12层、7#楼二单元1-12层、8号楼三单元1-12层。
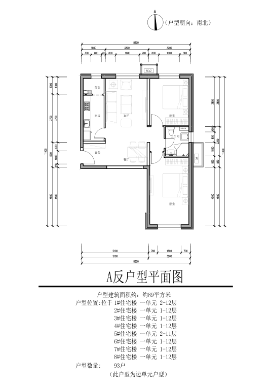
A反户型(二居室):约89平方米,共93户,位于1号楼一单元2-12层、2号楼一单元1-12层、3号楼一单元1-12层、4号楼一单元1-12层、5号楼一单元2-11层、6号楼一单元1-12层、7#楼一单元1-12层、8号楼一单元1-12层。
客厅为北向,主卧室为南向,次卧室为北向,卫生间为明卫。外窗材质为断桥铝合金,起居室窗洞宽约1.8米,高约1.7米;主卧窗宽约1.8米,高约1.7米;次卧窗洞宽约1.6米,高约1.4米;厨房北侧设阳台,阳台窗洞宽约0.8米,高约1.4米;卫生间窗洞宽约0.8米,高约1.4米。
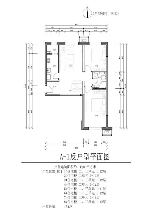
A-1户型(二居室):约89平米,共154户,位于1号楼一单元、二单元1-12层,2号楼一单元1-12层,3号楼一单元、二单元1-12层,4号楼一单元1-12层,5号楼一单元、二单元1-11层,6号楼一单元、二单元1-12层,7号楼一单元1-12层,8号楼一单元、二单元1-12层。
A-1反户型(二居室):约89平米,共154户,位于1号楼二单元、三单元1-12层,2号楼二单元1-12层,3号楼二单元、三单元1-12层,4号楼二单元1-12层,5号楼二单元、三单元1-11层,6号楼二单元、三单元1-12层,7号楼二单元1-12层,8号楼二单元、三单元1-12层。
客厅为北向,主卧室为南向,次卧室为北向,卫生间为暗卫。外窗材质为断桥铝合金,起居室窗洞宽约1.8米,高约1.7米;主卧窗宽约1.8米,高约1.7米;次卧窗洞宽约1.6米,高约1.4米;厨房北侧设阳台,阳台窗洞宽约0.8米,高约1.4米;暗卫无窗。
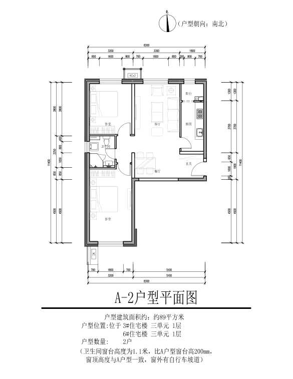
A-2户型(二居室):约89平米,共2户,位于3号楼三单元首层,6号楼三单元首层。
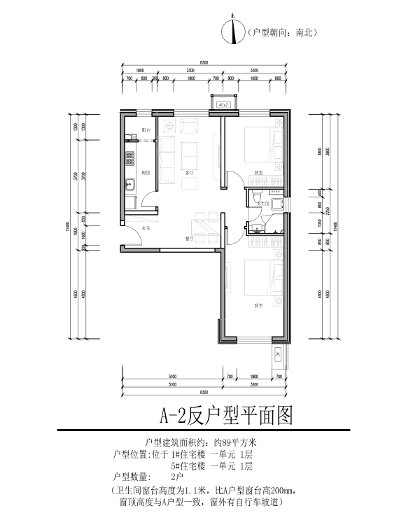
A-2反户型(二居室):约89平米,共2户,位于1号楼一单元首层,5号楼一单元首层。
客厅为北向,主卧室为南向,次卧室为北向,卫生间为明卫。外窗材质为断桥铝合金,起居室窗洞宽约1.8米,高约1.7米;主卧窗洞宽约1.8米,高约1.7米;次卧窗洞宽约1.6米,高约1.4米;厨房北侧设阳台,阳台窗洞宽约0.8米,高约1.4米;卫生间窗洞宽约0.8米,高约1.2米,窗台高度约为1.1米。
B户型(二居室):约87平方米,共248户,位于1号楼一单元、二单元、三单元1-12层,2号楼一单元1-12层、二单元2-12层,3号楼一单元、二单元、三单元1-12层,4号楼一单元、二单元1-12层,5号楼一单元、二单元、三单元1-12层,6号楼一单元、二单元、三单元1-12层,7号楼一单元、二单元1-12层,8号楼一单元、二单元、三单元1-12层。
B反户型(二居室):约87平方米,共248户,位于1号楼一单元、二单元、三单元1-12层,2号楼一单元1-12层、二单元2-12层,3号楼一单元、二单元、三单元1-12层,4号楼一单元、二单元1-12层,5号楼一单元、二单元、三单元1-12层,6号楼一单元、二单元、三单元1-12层,7号楼一单元、二单元1-12层,8号楼一单元、二单元、三单元1-12层。
客厅为南向,主卧室、次卧室为南向,卫生间为暗卫。外窗材质为断桥铝合金,客厅外阳台窗洞宽约1.8米,高约1.7米;主卧窗洞宽约1.8米,高约1.7米;次卧窗洞宽约1.5米,高约1.4米;厨房窗洞宽约0.8米,高约1.4米;卫生间无窗为暗卫;
注:以上数据最终以规划部门审批结果为准,如有变更开发单位将及时公告。
户型图示例








项目位置图

鸟瞰图

立面图

附件1:面向申购家庭配售房源
附件2:项目有关情况特别提示
附件3:申购注意事项
附件4:申购系统操作指南